994 Guisachan Road
Toggle navigation
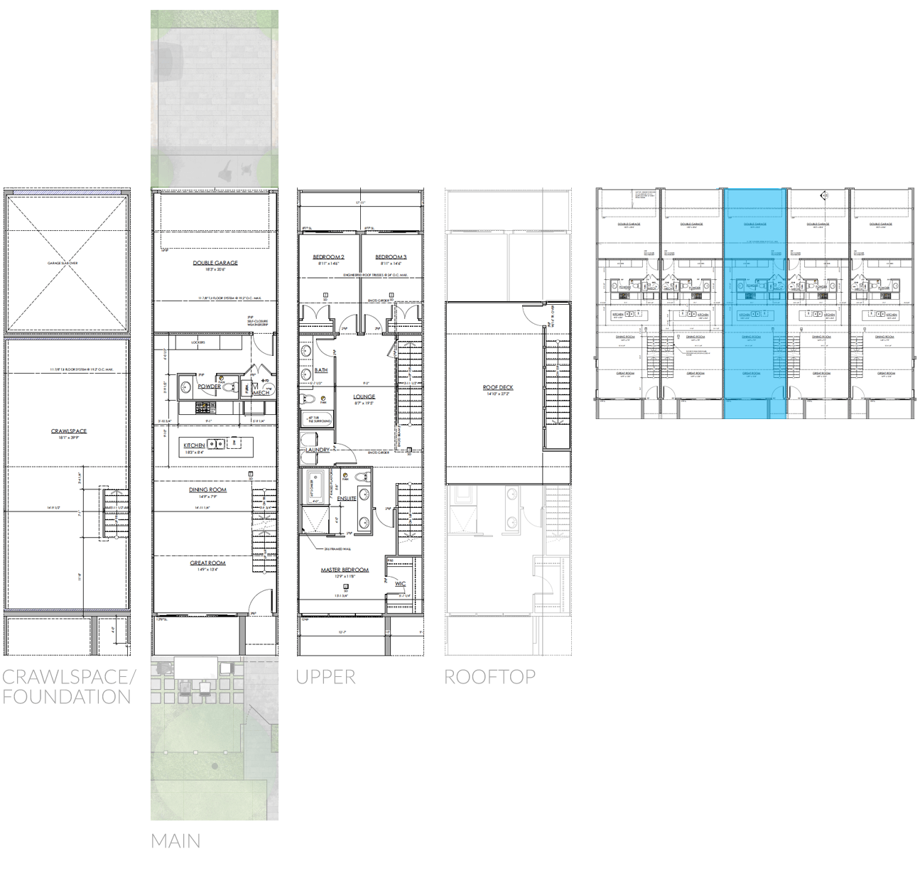
Floor Plans
3 bedroom plus lounge
1830 Sq F Living
452 Sq F Outdoor Living
Developer/Builder Info
↦
X
Home
Location
Composition
Interiors
Plans
Developer/Builder
Register
Videos